дома search
коды
типология
использовать
категория
город
зона
описание
цена
кв.м.
порядок
ПОИСК
<< назад
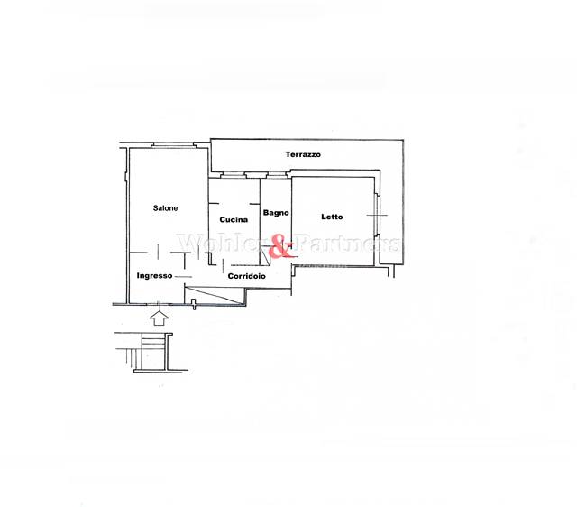
V001584 - Roma (Cassia/ Tomba di Nerone/ Giustiniana/ Olgiata)
квартира
цена
325 000,00 EUR
расходы
960,00 EUR
кв.м.
110
класс
E
местный
4,5
ванна
1
Состояние недвижимости
Хорошее
Уровень недвижимости
Элегантный
Панорама
Вид на горы
Этаж
Четвёртый этаж
Расположение
Юго западное
Свободные стороны
2
Обстановка
Не мебелированая
Тип гостинной
салон
Тип кухни
Отдельная
Отопление
Центральное
Тип отопления
Caldaia
Tipo Impianto
Радиаторы
Fonte Energetica
метан
Горячая вода
Круглогодичный электрический бойлер
Наличники
Алюминий Двойное остекление
Двери
В среднем состоянии
пол кухни
Керамика
Ванная комната Этаж
Керамика
Подвал - чердак
Погреб
аксессуары
Буфет, Лифт, Двойные стеклопакеты, Бронированая дверь

КАРТА

Largo San Godenzo 3, Roma (RM)
info@wohler-partners.com +39 031 123456
* Печенье помочь нам доставить наши услуги. Используя эти услуги, вы соглашаетесь с использованием печенья с нашей стороны. Дополнительная информация Я понимаю
Cookie preference